LINEでメークコーポレーション店舗公式アカウントを友だちに追加すると、カンタンにお問い合わせが可能!
- お問合せ番号
- 0000090835
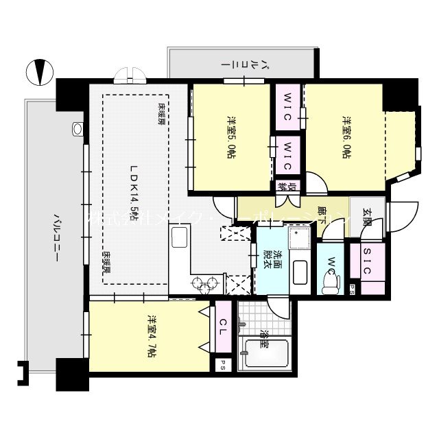
オープンレジデンシア高宮ヒルズ
福岡市南区高宮
間取り(専有面積)
3LDK
(70.07㎡)
賃料
17.4万円
- 管理費等
- 3000円
- 敷金/礼金
- -/2ヶ月
- 保証金/敷引・償却金
- -/--
- 交通
-
西鉄天神大牟田線 高宮(福岡)駅 徒歩12分
西鉄天神大牟田線 西鉄平尾駅 徒歩14分
福岡市地下鉄七隈線 渡辺通駅 徒歩31分
- 築年月(築年数)
- 2021年6月
- 主要採光面
- 東
- 建物構造
- 鉄筋コンクリート
- 土地面積
- 契約期間
- 2年間
- 所在階/階数
- 2階/7階建
- 総戸数
- 21
- 駐車場
- 駐車場:有(敷地内) 12000円/月~ 平置 屋根:無 駐輪場:有
2021年築の分譲タイプ3LDK70㎡!高宮エリアの落ち着いた住環境でワンランク上の暮らしが叶います!ペット可(小型犬のみ)で、ファミリーにもおすすめの一室です!




































